取手駅/3590万円(新築/IB0037515385)
【総桧住宅】売主物件につき仲介手数料不要
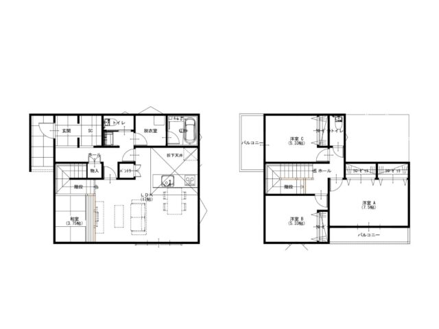
☆陽当り良好な南西道路☆
☆明るく見通しの良い2面バルコニー☆
☆17帖のLDKに3.75帖の和室で広々とした空間☆
☆収納も豊富、新しい街並み☆
☆明るく見通しの良い2面バルコニー☆
☆17帖のLDKに3.75帖の和室で広々とした空間☆
☆収納も豊富、新しい街並み☆
販売価格 3,590万円
沿線・最寄り駅
- JR常磐線取手駅徒歩16分距離 1228m
住所
茨城県取手市井野一丁目 土地面積
165.29㎡(50坪)物件所在地・周辺情報
※表示されている地図は周辺環境を示すものであり、実際の物件所在地とは異なる場合がございます。詳細は必ずお問い合わせください。
| 価格 | 3,590万円 | 間取り | 4LDK |
|---|---|---|---|
| 住所 | 茨城県取手市井野一丁目 | ||
| 沿線・最寄り駅 |
|
||
| 土地面積 | 165.29㎡(50坪) | 建物面積 | 109.30㎡(33.06坪) |
| 建ぺい率 | 60% | 容積率 | 200% |
| 地目 | 宅地 | 現況 | 建築中 |
| 都市計画 | 市街化区域 | 用途地域 | 第一種中高層住居専用地域 |
| 構造・規模 | 木造JAS規格桧構造材瓦葺2階建 | 接道 | 南西側5m公道 |
| セットバック | 駐車場 | 2台分あり | |
| 引き渡し時期 | 相談 | 取引態様 | 売主 |
| 手数料 | 売主に付き仲介手数料不要 | 建築確認番号 | 第R07A確済M1028号 |
| 設備 | 公営水道、公共下水、都市ガス | 学区 | 取手東小学校 (1620m)、取手第一中学校 (1790m) |
| 備考 |
※ゴミ置場持分有:持分13分の1 ※第三種高度地区 W保証:住宅保証機構 弊社20年保証住宅 地盤20年保証 S優良住宅支援制度適合住宅 フラット35適合住宅 24Hエアサイクルシステム |
||


















