取手駅/3890万円(新築/IB0004472707)
☆新築未入居戸建て☆
☆JR常磐線始発駅「取手」駅徒歩14分☆
☆築浅!令和8年1月築!
☆未入居!即入居可!☆
☆日栄商事施工のこだわりの注文住宅☆
☆築浅!令和8年1月築!
☆未入居!即入居可!☆
☆日栄商事施工のこだわりの注文住宅☆
販売価格 3,890万円
沿線・最寄り駅
- JR常磐線取手駅徒歩14分距離 1120m
住所
茨城県取手市井野台三丁目 土地面積
157.23㎡(47.56坪)物件所在地・周辺情報
※表示されている地図は周辺環境を示すものであり、実際の物件所在地とは異なる場合がございます。詳細は必ずお問い合わせください。
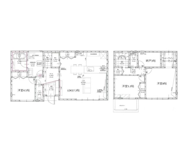
| 価格 | 3,890万円 | 間取り | 3SLDK |
|---|---|---|---|
| 住所 | 茨城県取手市井野台三丁目 | ||
| 沿線・最寄り駅 |
|
||
| 土地面積 | 157.23㎡(47.56坪) | 建物面積 | 99.08㎡(29.97坪) |
| 建ぺい率 | 60% | 容積率 | 200% |
| 地目 | 宅地 | 現況 | 空家 |
| 都市計画 | 市街化区域 | 用途地域 | 第二種中高層住居専用地域 |
| 構造・規模 | 木造JAS規格桧構造材瓦葺2階建 | 接道 | 西側4m公道 |
| セットバック | 駐車場 | 2台分あり(車種による) | |
| 引き渡し時期 | 即入居可 | 取引態様 | 専任媒介 |
| 手数料 | 分かれ | 建築確認番号 | 第2025CA-0460S号 |
| 設備 | 公営水道、公共下水、都市ガス | 学区 | 寺原小学校 (877m)、取手第二中学校 (2049m) |
| 備考 |
※検査済証(令和8年1月26日) ※有効期限:R8/5/8 |
||






























