常盤平駅/5490万円(新築/IB0080017765)
【総桧住宅】売主物件につき仲介手数料不要
☆京成松戸線「常盤平駅」徒歩11分☆
☆北東角地・南側も駐車場のため、開放的な立地です☆
☆常盤平第三小学校も500m以内・お子様も安心☆
☆北東角地・南側も駐車場のため、開放的な立地です☆
☆常盤平第三小学校も500m以内・お子様も安心☆
販売価格 5,490万円
沿線・最寄り駅
- 京成電鉄松戸線常盤平駅徒歩11分距離 826m
- JR武蔵野線新八柱駅徒歩15分距離 1190m
住所
千葉県松戸市常盤平西窪町 土地面積
117.37㎡(35.5坪)物件所在地・周辺情報
※表示されている地図は周辺環境を示すものであり、実際の物件所在地とは異なる場合がございます。詳細は必ずお問い合わせください。
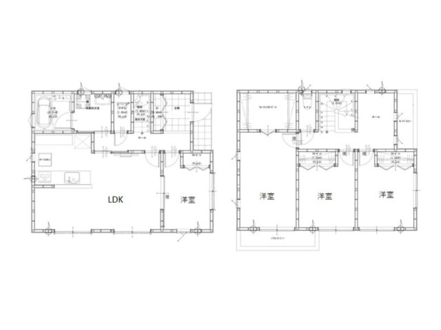
| 価格 | 5,490万円 | 間取り | 4LDK |
|---|---|---|---|
| 住所 | 千葉県松戸市常盤平西窪町 | ||
| 沿線・最寄り駅 |
|
||
| 土地面積 | 117.37㎡(35.5坪) | 建物面積 | 99.36㎡(30.05坪) |
| 建ぺい率 | 50% | 容積率 | 100% |
| 地目 | 宅地 | 現況 | 更地 |
| 都市計画 | 市街化区域 | 用途地域 | 第一種低層住居専用地域 |
| 構造・規模 | 木造JAS規格桧構造材瓦葺2階建 | 接道 | 南東側約8m公道、北東側約4m私道 |
| セットバック | 駐車場 | 2台分あり(車種による) | |
| 引き渡し時期 | 完成後 | 取引態様 | 売主 |
| 手数料 | 売主に付き仲介手数料不要 | 建築確認番号 | 第SJK-KX246014430号 |
| 設備 | 公営水道、公共下水、都市ガス | 学区 | 常盤平第三小学校 (487m)、常盤平中学校 (665m) |
| 備考 |
※建物配置・間取り・駐車場位置についてはご参考となります。設計士とのお打合せにより変更が可能です。 ※私道(位置指定道路)持分有:16.42㎡ W保証:住宅保証機構 弊社20年保証住宅 地盤20年保証 S優良住宅支援制度適合住宅 フラット35適合住宅 24Hエアサイクルシステム |
||



























