荒川沖駅/3400万円(新築/IB0060068617)
【総桧住宅】売主物件につき仲介手数料不要
☆敷地面積100坪超の開放感!☆
☆周辺にはベイシア(650m)、カインズ(840m)など商業施設が豊富で、利便性良好な立地☆
☆標高25mの高台☆
☆周辺にはベイシア(650m)、カインズ(840m)など商業施設が豊富で、利便性良好な立地☆
☆標高25mの高台☆
販売価格 3,400万円
沿線・最寄り駅
- JR常磐線荒川沖駅距離 2440m
- JR常磐線ひたち野うしく駅距離 3650m
住所
茨城県稲敷郡阿見町大字実穀 土地面積
363.77㎡(110.04坪)物件所在地・周辺情報
※表示されている地図は周辺環境を示すものであり、実際の物件所在地とは異なる場合がございます。詳細は必ずお問い合わせください。
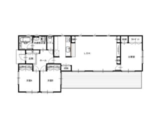
| 価格 | 3,400万円 | 間取り | 3LDK |
|---|---|---|---|
| 住所 | 茨城県稲敷郡阿見町大字実穀 | ||
| 沿線・最寄り駅 |
|
||
| 土地面積 | 363.77㎡(110.04坪) | 建物面積 | 86.13㎡(26.05坪) |
| 建ぺい率 | 60% | 容積率 | 200% |
| 地目 | 宅地 | 現況 | 更地 |
| 都市計画 | 市街化調整区域 | 用途地域 | 指定なし |
| 構造・規模 | 木造JAS規格桧構造材瓦葺平屋建 | 接道 | 南側約17.4m公道(歩道含む) |
| セットバック | 駐車場 | 2台分あり | |
| 引き渡し時期 | 完成後 | 取引態様 | 売主 |
| 手数料 | 売主に付き仲介手数料不要 | 建築確認番号 | 第SJK-KX256012410号 |
| 設備 | 公営水道、浄化槽、LPガス | 学区 | 本郷小学校 (1930m)、朝日中学校 (465m) |
| 備考 |
※地目:宅地、畑 ※線引前宅地(包括承認基準18) ※建物配置・間取り・駐車場位置についてはご参考となります。設計士とのお打合せにより変更が可能です。 W保証:住宅保証機構 弊社20年保証住宅 地盤20年保証 S優良住宅支援制度適合住宅 フラット35適合住宅 24Hエアサイクルシステム |
||




























