逆井駅/3590万円(新築/IB0059568499)
【総桧住宅】売主物件につき仲介手数料不要
☆東武線「逆井」駅徒歩10分☆
☆駅前にはスーパー、ドラッグストア、コンビニが立地☆
☆災害に強い標高23m超の高台♪☆
☆駅前にはスーパー、ドラッグストア、コンビニが立地☆
☆災害に強い標高23m超の高台♪☆
販売価格 3,590万円
沿線・最寄り駅
- 東武アーバンパークライン逆井駅徒歩10分距離 739m
住所
千葉県柏市藤心二丁目 土地面積
176.93㎡(53.52坪)物件所在地・周辺情報
※表示されている地図は周辺環境を示すものであり、実際の物件所在地とは異なる場合がございます。詳細は必ずお問い合わせください。
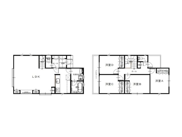
| 価格 | 3,590万円 | 間取り | 4LDK |
|---|---|---|---|
| 住所 | 千葉県柏市藤心二丁目 | ||
| 沿線・最寄り駅 |
|
||
| 土地面積 | 176.93㎡(53.52坪) | 建物面積 | 99.36㎡(30.05坪) |
| 建ぺい率 | 50% | 容積率 | 100% |
| 地目 | 宅地 | 現況 | 更地 |
| 都市計画 | 市街化区域 | 用途地域 | 第一種低層住居専用地域 |
| 構造・規模 | 木造JAS規格桧構造材瓦葺2階建 | 接道 | 北東側約4.8~4.9m |
| セットバック | 駐車場 | 2台分あり(車種による) | |
| 引き渡し時期 | 完成後 | 取引態様 | 売主 |
| 手数料 | 売主に付き仲介手数料不要 | 建築確認番号 | 第SJK-KX256008370号 |
| 設備 | 公営水道、公共下水、LPガス | 学区 | 藤心小学校 (1310m)、逆井中学校 (1540m) |
| 備考 |
※建物配置・間取り・駐車場位置についてはご参考となります。設計士とのお打合せにより変更が可能です。 ※有効宅地面積:119.91㎡(36.27坪) ※崖条例:後退部分57.02㎡(17.24坪) W保証:住宅保証機構 弊社20年保証住宅 地盤20年保証 S優良住宅支援制度適合住宅 フラット35適合住宅 24Hエアサイクルシステム |
||






























