荒川沖駅/2490万円(新築/IB0057764121)
【総桧住宅】売主につき仲介手数料不要
完成予想図(外観)
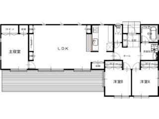
完成予想図(間取図)
現地写真
現地写真
当社施工例(内観)
当社施工例(内観)
当社施工例(内観)
当社施工例(外観)
当社施工例(外観)
当社施工例(外観)
☆JR常磐線「荒川沖駅」徒歩13分!136坪超の広々とした敷地☆
☆ドラッグストアセキ(680m)、ジョイフル本田(1140m)で買い物便利☆
販売価格 2,490万円
沿線・最寄り駅
  • JR常磐線荒川沖駅徒歩13分距離 1000m
住所
茨城県土浦市乙戸
土地面積
449.61㎡(136坪)
電話お問い合わせ
0120-666-097
  • 受付時間 9:00〜18:00
  • 土・日・祝日も受付
    (当社指定休日は休みとなります)

物件所在地・周辺情報

※表示されている地図は周辺環境を示すものであり、実際の物件所在地とは異なる場合がございます。詳細は必ずお問い合わせください。
  • 荒川沖駅(1000m)
  • 乙戸小学校(1330m)
  • 土浦第三中学校(1730m)
  • ドラッグストアセキ 荒川沖店(680m)
  • よしだクリニック(780m)
  • 荒川沖保育所(880m)
  • ジョイフル本田 荒川沖店(1140m)
  • カスミ 中村店(1420m)
  • 乙戸南公園(1490m)
価格2,490万円 間取り3LDK
住所 茨城県土浦市乙戸
沿線・最寄り駅
  • JR常磐線荒川沖駅徒歩13分距離 1000m
土地面積449.61㎡(136坪) 建物面積86.11㎡(26.04坪)
建ぺい率 50% 容積率 100%
地目 山林 現況 更地
都市計画 市街化区域 用途地域 第一種低層住居専用地域
構造・規模 木造JAS規格桧構造材瓦葺平屋建 接道 北側4m位置指定道路
セットバック 駐車場 2台分あり
引き渡し時期 完成後 取引態様 売主
手数料 売主に付き仲介手数料不要 建築確認番号 第SJK-KX256007610号
設備 公営水道、公共下水、LPガス 学区 乙戸小学校 (1330m)、土浦第三中学校 (1730m)
備考 ※建物配置・間取り・駐車場位置についてはご参考となります。設計士とのお打合せにより変更が可能です。

※有効宅地面積:367.05㎡(111.03坪)
※私道持分有

W保証:住宅保証機構
    弊社20年保証住宅
地盤20年保証
S優良住宅支援制度適合住宅
フラット35適合住宅
24Hエアサイクルシステム


    お問い合わせ・資料請求

    お問い合わせ内容必須

    お名前必須

    フリガナ

    メールアドレス必須

    電話番号必須

    郵便番号必須

    都道府県必須

    住所必須

    建物名等

    備考

    送信確認必須

    • SDGsへの取り組み
    • 求人情報
    • スタッフブログ