新守谷駅/2900万円(新築/IB0052906988)
【総桧住宅】売主物件につき仲介手数料不要
☆約119坪のゆとりの敷地☆
☆区域指定につきどなたでも建築可能☆
☆前面約9mの広々南東道路☆
☆区域指定につきどなたでも建築可能☆
☆前面約9mの広々南東道路☆
販売価格 2,900万円
沿線・最寄り駅
- 関東鉄道常総線新守谷駅徒歩17分距離 1290m
- つくばエクスプレス守谷駅距離 2240m
住所
茨城県つくばみらい市筒戸 土地面積
393.71㎡(119.09坪)物件所在地・周辺情報
※表示されている地図は周辺環境を示すものであり、実際の物件所在地とは異なる場合がございます。詳細は必ずお問い合わせください。
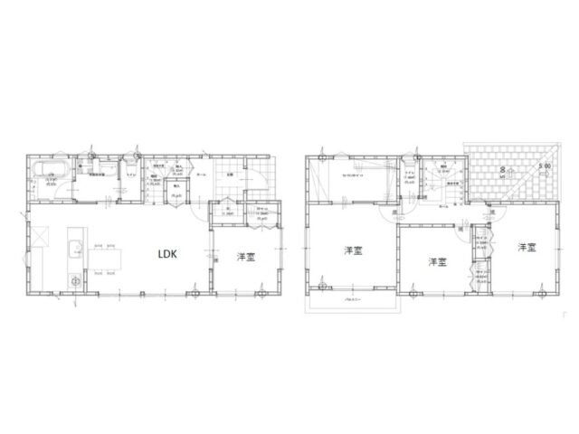
| 価格 | 2,900万円 | 間取り | 4LDK |
|---|---|---|---|
| 住所 | 茨城県つくばみらい市筒戸 | ||
| 沿線・最寄り駅 |
|
||
| 土地面積 | 393.71㎡(119.09坪) | 建物面積 | 99.37㎡(30.05坪) |
| 建ぺい率 | 60% | 容積率 | 200% |
| 地目 | 宅地 | 現況 | 更地 |
| 都市計画 | 市街化調整区域 | 用途地域 | |
| 構造・規模 | 木造JAS規格桧構造材瓦葺2階建 | 接道 | 南東側9m公道 |
| セットバック | 駐車場 | 2台分あり | |
| 引き渡し時期 | 完成後 | 取引態様 | 売主 |
| 手数料 | 売主に付き仲介手数料不要 | 建築確認番号 | 第2025CA-0266S号 |
| 設備 | 公営水道、公共下水、LPガス | 学区 | 小絹小学校 (2600m)、小絹中学校 (2634m) |
| 備考 |
※建物配置・間取り・駐車場位置についてはご参考となります。設計士とのお打合せにより変更が可能です。 ※区域指定:第11号区域 ※実測面積:394.64㎡(119.37坪) W保証:住宅保証機構 弊社20年保証住宅 地盤20年保証 S優良住宅支援制度適合住宅 フラット35適合住宅 24Hエアサイクルシステム |
||






























