牛久駅/2630万円(新築/IB0045455176)
【総桧住宅】売主物件につき仲介手数料不要
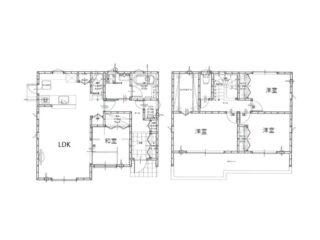
完成予想図(間取図)
現地写真
当社施工例(内観)
当社施工例(内観)
当社施工例(内観)
当社施工例(外観)
当社施工例(外観)
当社施工例(外観)
☆南北両面道路に面する開放感のある整形地☆
☆区画整理された平坦な街並みで生活のしやすい住宅地です☆
販売価格 2,630万円
沿線・最寄り駅
  • JR常磐線牛久駅距離 2200m
住所
茨城県牛久市刈谷町四丁目
土地面積
186.14㎡(56.3坪)
電話お問い合わせ
0120-666-097
  • 受付時間 9:00〜18:00
  • 土・日・祝日も受付
    (当社指定休日は休みとなります)

物件所在地・周辺情報

※表示されている地図は周辺環境を示すものであり、実際の物件所在地とは異なる場合がございます。詳細は必ずお問い合わせください。
  • 牛久駅(2200m)
  • 牛久小学校(1100m)
  • 牛久第三中学校(895m)
  • 刈谷第四街区公園(110m)
  • 中野医院(410m)
  • 牛久第二幼稚園(1330m)
  • カスミ 刈谷店(1500m)
  • ウエルシア 刈谷店(1600m)
  • エスカード タイラヤ(1900m)
価格2,630万円 間取り4LDK
住所 茨城県牛久市刈谷町四丁目
沿線・最寄り駅
  • JR常磐線牛久駅距離 2200m
土地面積186.14㎡(56.3坪) 建物面積99.36㎡(30.05坪)
建ぺい率 50% 容積率 100%
地目 宅地 現況 更地
都市計画 市街化区域 用途地域 第一種低層住居専用地域
構造・規模 木造JAS規格桧構造材瓦葺2階建 接道 北側4.5m公道、南6m公道
セットバック 駐車場 2台分あり
引き渡し時期 完成後 取引態様 売主
手数料 売主に付き仲介手数料不要 建築確認番号 第2021CA-1581S号
設備 公営水道、公共下水、都市ガス 学区 牛久小学校 (1100m)、牛久第三中学校 (895m)
備考 ※建物配置・間取り・駐車場位置についてはご参考となります。設計士とのお打合せにより変更が可能です。

W保証:住宅保証機構
    弊社20年保証住宅
地盤20年保証
S優良住宅支援制度適合住宅
フラット35適合住宅
24Hエアサイクルシステム


    お問い合わせ・資料請求

    お問い合わせ内容必須

    お名前必須

    フリガナ

    メールアドレス必須

    電話番号必須

    郵便番号必須

    都道府県必須

    住所必須

    建物名等

    備考

    送信確認必須

    • SDGsへの取り組み
    • 求人情報
    • スタッフブログ