寺原駅/3290万円(新築/IB0033272415)
【総桧住宅】売主物件につき仲介手数料不要
☆関鉄常総線「寺原」駅徒歩6分☆
☆南西角地に付き陽当り良好☆
☆寺原小学校徒歩740m、取手第二中学校820m☆
☆南西角地に付き陽当り良好☆
☆寺原小学校徒歩740m、取手第二中学校820m☆
販売価格 3,290万円
沿線・最寄り駅
- 関東鉄道常総線寺原駅徒歩6分距離 480m
住所
茨城県取手市本郷四丁目 土地面積
178.49㎡(53.99坪)物件所在地・周辺情報
※表示されている地図は周辺環境を示すものであり、実際の物件所在地とは異なる場合がございます。詳細は必ずお問い合わせください。
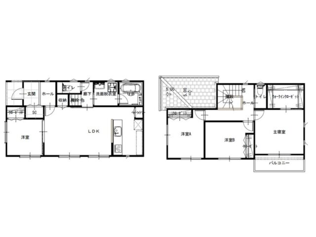
| 価格 | 3,290万円 | 間取り | 4LDK |
|---|---|---|---|
| 住所 | 茨城県取手市本郷四丁目 | ||
| 沿線・最寄り駅 |
|
||
| 土地面積 | 178.49㎡(53.99坪) | 建物面積 | 99.36㎡(30.05坪) |
| 建ぺい率 | 50% | 容積率 | 100% |
| 地目 | 宅地 | 現況 | 更地 |
| 都市計画 | 市街化区域 | 用途地域 | |
| 構造・規模 | 木造JAS規格桧構造材瓦葺2階建 | 接道 | 北西側4.6m公道、南西4.4m公道 |
| セットバック | 駐車場 | 2台分あり | |
| 引き渡し時期 | 完成後 | 取引態様 | 売主 |
| 手数料 | 売主に付き仲介手数料不要 | 建築確認番号 | 第SJK-KX256013270号 |
| 設備 | 公営水道、公共下水、都市ガス | 学区 | 寺原小学校 (740m)、取手第二中学校 (820m) |
| 備考 |
※用途地域:第一種低層住居専用地域 ※建物配置・間取り・駐車場位置についてはご参考となります。設計士とのお打合せにより変更が可能です。 W保証:住宅保証機構 弊社20年保証住宅 地盤20年保証 S優良住宅支援制度適合住宅 フラット35適合住宅 24Hエアサイクルシステム |
||
































