天王台駅/3900万円(新築/IB0010608872)
    
    【総桧住宅】売主物件につき仲介手数料不要
    ☆JR常磐線「天王台駅」徒歩15分 / 成田線「東我孫子駅」徒歩13分☆
☆敷地広々51坪超!南道路の高台につき陽当たり良好☆
☆四季折々の美しさを楽しめる手賀沼を望む☆
☆敷地広々51坪超!南道路の高台につき陽当たり良好☆
☆四季折々の美しさを楽しめる手賀沼を望む☆
販売価格 3,900万円
                沿線・最寄り駅
                    - JR常磐線天王台駅徒歩15分距離 1170m
 - JR成田線東我孫子駅徒歩13分距離 979m
 
住所
                    千葉県我孫子市高野山                土地面積
170.06㎡(51.44坪)物件所在地・周辺情報
※表示されている地図は周辺環境を示すものであり、実際の物件所在地とは異なる場合がございます。詳細は必ずお問い合わせください。
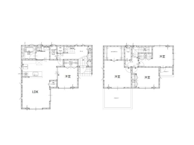
                                    | 価格 | 3,900万円 | 間取り | 4LDK | 
|---|---|---|---|
| 住所 | 千葉県我孫子市高野山 | ||
| 沿線・最寄り駅 | 
                    
  | 
            ||
| 土地面積 | 170.06㎡(51.44坪) | 建物面積 | 99.36㎡(30.05坪) | 
| 建ぺい率 | 60% | 容積率 | 150% | 
| 地目 | 宅地 | 現況 | 更地 | 
| 都市計画 | 市街化区域 | 用途地域 | 第一種低層住居専用地域 | 
| 構造・規模 | 木造JAS規格桧構造材瓦葺2階建 | 接道 | 南側約5m公道 | 
| セットバック | 駐車場 | 2台分あり | |
| 引き渡し時期 | 完成後 | 取引態様 | 売主 | 
| 手数料 | 売主に付き仲介手数料不要 | 建築確認番号 | 第SJK-KX246010290号 | 
| 設備 | 公営水道、公共下水、都市ガス | 学区 | 高野山小学校 (1380m)、我孫子中学校 (745m) | 
| 備考 | 
                    ※建物配置・間取り・駐車場位置についてはご参考となります。設計士とのお打合せにより変更が可能です。 W保証:住宅保証機構 弊社20年保証住宅 地盤20年保証 S優良住宅支援制度適合住宅 フラット35適合住宅 24Hエアサイクルシステム  | 
            ||
































