つくば駅/4300万円(新築/IB0014596709)
【総桧住宅】売主物件につき仲介手数料不要
☆桜南小学校徒歩9分(670m)!土地60坪超!☆
☆徒歩圏に商業施設・公園が充実したエリアです!☆
☆徒歩圏に商業施設・公園が充実したエリアです!☆
販売価格 4,300万円
沿線・最寄り駅
- つくばエクスプレスつくば駅距離 4900m
住所
茨城県つくば市並木三丁目 土地面積
199㎡(60.19坪)物件所在地・周辺情報
※表示されている地図は周辺環境を示すものであり、実際の物件所在地とは異なる場合がございます。詳細は必ずお問い合わせください。
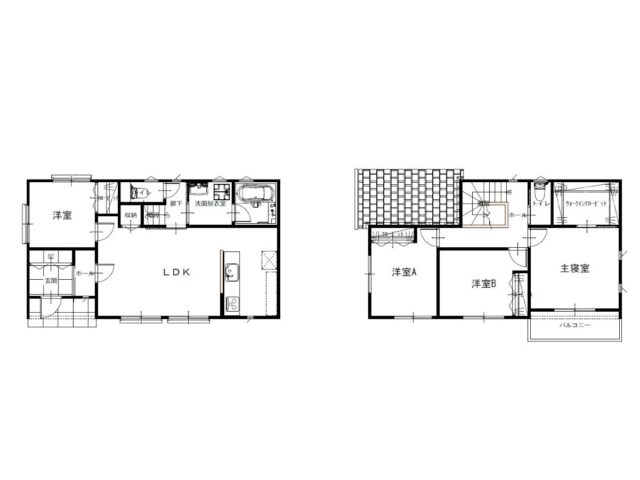
| 価格 | 4,300万円 | 間取り | 4LDK |
|---|---|---|---|
| 住所 | 茨城県つくば市並木三丁目 | ||
| 沿線・最寄り駅 |
|
||
| 土地面積 | 199㎡(60.19坪) | 建物面積 | 99.36㎡(30.05坪) |
| 建ぺい率 | 60% | 容積率 | 200% |
| 地目 | 宅地 | 現況 | 更地 |
| 都市計画 | 市街化区域 | 用途地域 | 第二種中高層住居専用地域 |
| 構造・規模 | 木造JAS規格桧構造材瓦葺2階建 | 接道 | 南西側8.8m公道 |
| セットバック | 駐車場 | 2台分あり | |
| 引き渡し時期 | 完成後 | 取引態様 | 売主 |
| 手数料 | 売主に付き仲介手数料不要 | 建築確認番号 | 第SJK-KX256008780号 |
| 設備 | 公営水道、公共下水、都市ガス | 学区 | 桜南小学校 (670m)、並木中学校 (380m) |
| 備考 |
※建物配置・間取り・駐車場位置についてはご参考となります。設計士とのお打合せにより変更が可能です。 ※第一種高度地区、第二種文教地区 ※確定測量面積:198.99㎡(60.19坪) W保証:住宅保証機構 弊社20年保証住宅 地盤20年保証 S優良住宅支援制度適合住宅 フラット35適合住宅 24Hエアサイクルシステム |
||
































